Immobilie
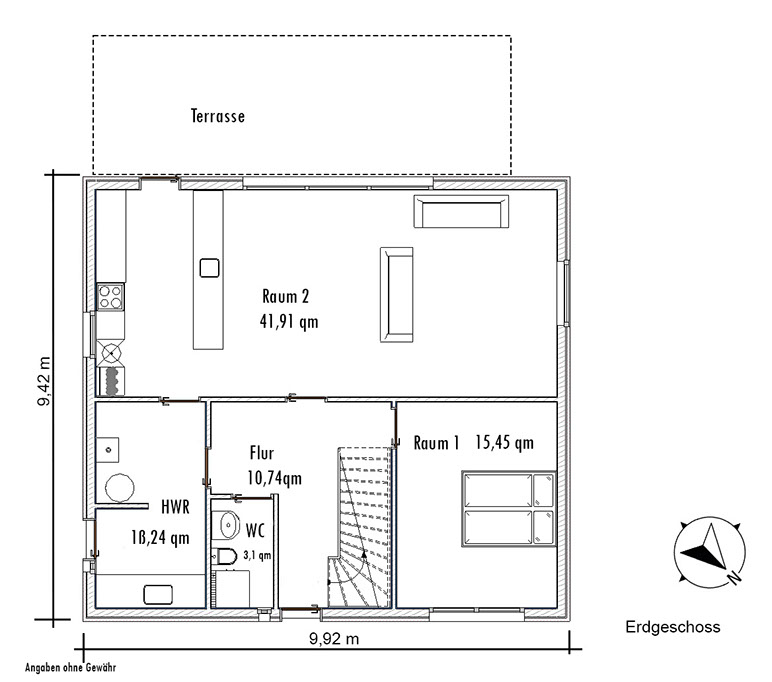
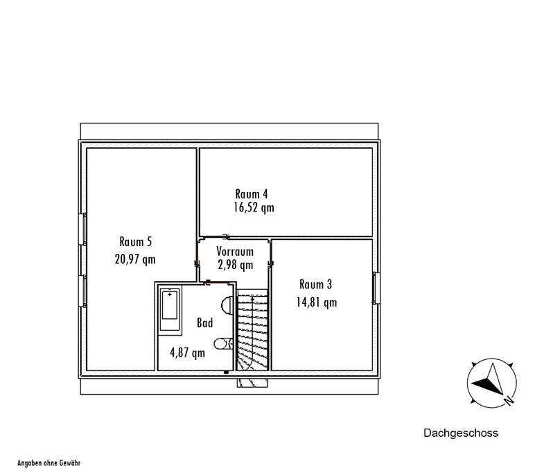
Grundrisse
Lage
Fotos
Kontakt